RCDE系列油冷式电磁除铁器

概述:
RCDA系列风冷悬挂式电磁除铁器内部采用空调风机强迫风冷、具有操作简单、使用方便等特点,适用环境条件较好的场合,用于破碎机前及输送机胶带上的任何物料除铁,对辊压机、破碎机、立磨等机械设备起着可靠的保护作用。
其主要性能指标均达到或高于JB/T7689-2004标准要求,该产品可除去混杂在非磁性物料中0.1~35公斤的铁磁性物质。
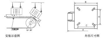
安装示意图:

技术参数:

RCDE系列油冷式电磁除铁器 0 本文被阅读 0 次
| 上一条:RCDE系列油冷式电磁除铁器 | 下一条:RCDB系列圆盘式电磁除铁器 |



地址:山东省临朐县东城工业园 联系人:韩经理 手机:13884714888 电话:0536-3116911